产品展示
防爆防腐全塑荧光灯BAY51-Q

适用范围:
■爆炸性气体混合物危险环境:1区、2区。
■爆炸性气体混合物:ⅡA、ⅡB、IIC。
■温度组别:T1~T6。
■爆炸性粉尘混合物危险场所:10区、11区。
■温度组别:T11~T13。
■户内、户外均可。
产品特点:
■玻璃纤维增强不饱和聚酯树脂模压成型外壳。
■聚碳酸脂透明灯罩。
■外壳为增安型结构,具有强度高、耐冲击,防水、防尘、防腐蚀、抗静电等有点。
■镇流器,开关采用防爆元件。
■内装单脚灯管,快速瞬时启动。
■有开盖自动断电联锁装置。
■可根据用户要求配带应急装置。
产品介绍
| 产品名称 | 规格型号 | 数量 |
| 防爆防腐全塑荧光灯 | BYS-2*20 | 1台/件 |
| BYS-2*40 | 1台/件 | |
| 应急式防爆防腐全塑荧光灯(带单脚灯灯管) | BYS-2*20J | 1台/件 |
| BYS-2*40J | 1台/件 |
| 产品型号 | 额定工作电压 | 额定功率 | 气体 | 粉尘 | 防护等级 | 电缆外径 | 防腐等级 | 质量 |
| BAY51-Q20*2 | 220V | 20*2W | Exed II CT6 | DIPDTT13 | IP65 | 10-14mm | WF2 | 6.5kg |
| BAY51-Q40*2 | 220V | 40*2W | Exed II CT6 | DIPDTT13 | IP65 | 10-14mm | WF2 | 10kg |
| 应急启动时间 | 充电时间 | 应急照明时间 |
| 0.3S | 24H | 60min |
主要参考技术


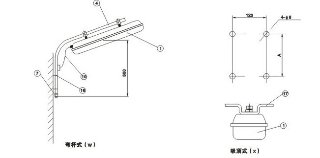
安装图







